Description
- * FOUR BEDROOMS
- * FIVE RECEPTION ROOMS
- * HALLS ADJOINING SEMI
- * HUGE LOWER GROUND FLOOR
- * GARAGE TO THE SIDE
- * OFF STREET PARKING
- * SCOPE TO EXTEND STPP
- * CHAIN FREE SALE
Entrance
Enclosed brick built porch, leaded, glazed, hardwood front door leading to inner hallway.
Entrance Hall (5.18 x 3.53)
17' x 11' 7" (5.18m x 3.53m) Radiator, original tiled flooring, door leading to lower floor rooms.
Reception 1 (5.94 x 5.21)
19' 6" x 17' 1" (5.94m x 5.21m) Front aspect leaded bay window, side aspect leaded window, radiator, electric fire.
Reception 2 (4.27 x 2.74)
14' x 9' (4.27m x 2.74m) Side aspect leaded feature window, rear aspect window and door to veranda, Rayburn coal fire and flu, radiator.
Reception 3 / Downstairs Bedroom (3.91 x 3.71)
12' 10" x 12' 2" (3.91m x 3.71m) Rear aspect window and door to veranda, Fitted wardrobes, radiator.
Conservatory (6.83 x 5.26)
22' 5" x 17' 3" (6.83m x 5.26m) Rear aspect window's and door to garden.
Kitchen (2.79 x 2.84)
9' 2" x 9' 4" (2.79m x 2.84m) Side aspect window and door to garden, fitted kitchen comprising a range of eye and base level units, stainless steel sink unit with mixer tap, gas cooker point, plumbed for washing machine.
Lower Ground Floor Room 1 (6.83 x 5.26)
22' 5" x 17' 3" (6.83m x 5.26m) Side aspect window's , radiator's, door to conservatory.
Lower Ground Floor Room 2 (5.59 x 3.96)
18' 4" x 13' (5.59m x 3.96m) Side aspect window, built in cupboards, radiator.
Lower Ground Floor Bathroom
Side aspect frosted window, panel enclosed bath with shower attachment, low level W.C, ceramic sink unit with under cupboard, cupboard housing water cylinder, thermostat.
Bedroom 1 (5.74 x 4.01)
18' 10" x 13' 2" (5.74m x 4.01m) Front aspect leaded bay window, side aspect leaded feature window's wash hand basin with under cupboard, radiator's.
Bedroom 2 (3.66 x 3.51)
12' x 11' 6" (3.66m x 3.51m) Rear aspect window, side aspect leaded feature window, wash hand basin, radiator, electric fire,
Bedroom 3 (3.81 x 3.48)
12' 6" x 11' 5" (3.81m x 3.48m) Rear aspect window, built in cupboard, radiator, electric fire.
Bedroom 4 (4.09 x 2.24)
13' 5" x 7' 4" (4.09m x 2.24m) Front aspect leaded window, wash hand basin, radiator.
Bathroom
Side aspect frosted window, panel enclosed bath with shower attachment, low level W.C, pedestal wash hand basin, radiator.
Garden
Approx 75ft, patio area leading to laid lawn, small trees side access to garage, door to boiler room with wall mounted Worcester boiler.
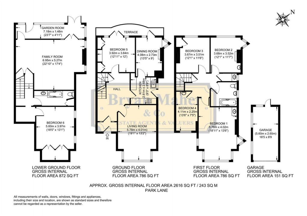
Floorplan

To discuss this property call us:
Market your property
with Bryan Maher & Co
Book a market appraisal for your property today.