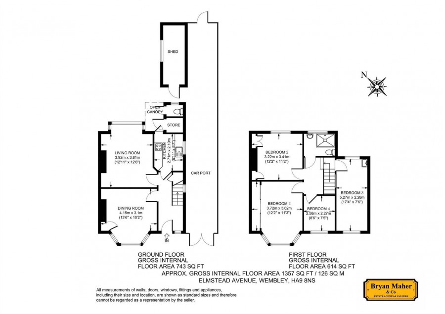
Description
- FOUR BEDROOM SEMI DETACHED PROPERTY
- ORIGINAL TILED ENTRANCE HALL
- LARGER STYLE FAMILY HOME
- DOWNSTAIRS W/C
- KITCHEN/BREAKFAST ROOM
- THROUGH LOUNGE
- GOOD CONDITION THROUGHOUT
- NEW DOUBLE GLAZING
- OFF STREET PARKING
- WALKING DISTANCE TO AMENITIES
Floorplan
EPC
To discuss this property call us:
Market your property
with Bryan Maher & Co
Book a market appraisal for your property today.
Similar Properties
Elmstead Avenue, WEMBLEY
£594,950- 4
- 2
- 1
*AN EXTENDED FOUR BEDROOM SEMI LOCATED JUST A SHORT WALK TO PRESTON ROAD TUBE STATION* We are delighted to have been favoured with instructions to bring to the market this spacious four bedroom property which is being sold with no onward chain. Some of the further benefits include two reception rooms, a garage approached via your own driveway and a wonderful mature rear garden. Internally the property would benefit from a programme of refurbishment and offers the perfect opportunity for a buyer wishing to improve and add value to their next home.
Woodford Place, Preston Road
£649,950- 4
- 1
- 2
* A STUNNING FOUR BEDROOM, TWO BATHROOM, MODERN FAMILY HOME" We are delighted to bring to the market this exceptional four bedroom property which is being sold with no onward chain. The property has been modernised to an extremely high standard and must be viewed to truly appreciate the space and quality being offered.
Internally the property briefly comprises of a welcoming entrance hallway, a ground floor W/C, a contemporary open plan kitchen/living/dining room, three first floor bedrooms with a modern four piece family bathroom and a loft bedroom benefitting from an en-suite shower room.
Externally the property provides ample off street parking to the front and a unique wrap around garden to the side & rear.
Beautiful four bedroom properties of this nature and within this location rarely come available within this price range, so an early viewing is strongly advised to avoid disappointment.
Blenheim Gardens, WEMBLEY
£649,950- 4
- 3
- 2
*AN EXTENDED FOUR BEDROOM FAMILY HOME LOCATED ON THIS HIGHLY DESIRABLE CUL-DE-SAC* We are delighted to have been favoured with instructions to bring to the market this deceptively spacious semi detached property which benefits from a wide plot to the side which could be further developed subject to the usual consents being obtained. Internally the property briefly comprises of a welcoming entrance hall, a guest cloakroom, a spacious through lounge, a rear reception room, a separate dining room leading to a fitted kitchen, four first floor bedrooms, a family bathroom and a separate W/C. The front drive provides off street parking and there is a well maintained garden to the rear. An early viewing is strongly advised for this large chain free property.
Elmstead Avenue, WEMBLEY PARK
£649,950- 4
- 1
- 2
*A PURPOSE BUILT FOUR BEDROOM FAMILY HOME IDEALLY LOCATED FOR THE METROPOLITAN & JUBILEE LINE TUBE STATIONS* We are delighted to bring to the market this attractive semi detached property located in Wembley Park. The property benefits from a full width rear extension creating a large kitchen/dining room, a downstairs shower room, a wide through lounge, four good size bedrooms and a first floor family bathroom. The garage to the side offers further development potential subject to usual consents being obtained and the large rear garden boasts ample space for entertaining. An early viewing is strongly advised for this superb chain free property.
Windermere Avenue, WEMBLEY
£649,950- 4
- 3
- 2
*A VASTLY EXTENDED SEMI DETACHED PROPERTY OFFERED IN EXCELLENT CONDITION THROUGHOUT* We are delighted to have been favoured with instructions to bring to the market this spacious four/five bedroom property located close to South Kenton Bakerloo line tube station. Internally the property briefly comprises of a welcoming entrance hall, a front reception room, an extended through lounge, a side reception room/downstairs bedroom, a large kitchen/breakfast room, a modern downstairs shower room, four first floor bedrooms and a modern family bathroom. Externally the front provides off street parking and there is a large garden and out house to the rear. We have been informed by our Vendor that there is currently planning permission granted to enlarge the property even further by way of a spacious loft conversion.
Elmstead Avenue, WEMBLEY PARK
£659,950- 4
- 2
- 2
*A WELL PRESENTED FOUR BEDROOM, TWO BATHROOM FAMILY HOME WITH A STUNNING OUTHOUSE* We are delighted to have been favoured with instructions to bring to the market this attractive semi detached property conveniently located for Wembley Park Metropolitan & Jubilee line tube station. The property briefly comprises of a fitted kitchen, two reception rooms, three first floor bedrooms, a family bathroom, a separate W/C and a loft conversion to create a fourth bedroom with en-suite facilities. The front driveway provides off street parking for two cars which leads to a garage and the mature rear garden leads down to a beautiful versatile outhouse with decking and a fish pond. This really is a must see property.
Elmstead Avenue, WEMBLEY
£670,000- 4
- 1
- 2
*A WELL PRESENTED FOUR BEDROOM, TWO BATHROOM FAMILY HOME* We are delighted to bring to the market this extended semi detached property conveniently located for both Wembley Park & Preston Road Metropolitan & Jubilee line tube stations. This chain free property boasts a delightful extended kitchen/breakfast room, a through lounge, a downstairs bedroom with an en-suite shower room, three first floor bedrooms and a family bathroom with an additional separate W/C. Further benefits include a large well maintained rear garden and off street parking to the front.
Basing Hill, Wembley
£674,950- 4
- 3
- 2
*EXTENDED FOUR BEDROOM SEMI DETACHED FAMILY HOME* We are delighted to have been favoured with instructions to bring to the market this well presented four bedroom property positioned on the upper slopes of the Barn Hill Estate benefitting from a full width rear and double storey side extension. Due to its position, the property enjoys views to the side over open grassland and wide spanning views including Wembley Stadium to the front. Internally the property boasts a guest cloakroom, three reception rooms, an enviable kitchen, a large downstairs shower w.c, a family bathroom suite, off street parking and a spacious rear garden ideal for entertaining. An early viewing is highly recommended.
Preston Road, WEMBLEY
£674,950- 4
- 2
- 1
*A DECEPTTIVELY SPACIOUS FOUR BEDROOM FAMILY HOME LOCATED CLOSE TO PRESTON ROAD TUBE STATION* We are delighted to bring to the market this larger than average semi detached property which offers excellent extension potential to the side, rear & loft (stpp) Internally the property briefly comprises a downstairs W/C, a front reception room, a rear reception room, a 22ft kitchen/dining room, a conservatory/lean too, a master bedroom with a walk in en-suite shower, three further good size bedrooms and a family bathroom. Externally the property benefits from a large rear garden and offers ample off street parking to the front.
